Bathroom Layout Do's & Don'ts

A well-designed bathroom balances style with comfort, function, and smart planning. Here's a short list of do's and don'ts we compiled to help you avoid common mistakes when designing a bathroom layout.

Bathroom do's and don'ts

Get the Spacing Right For Your Toilets

A toilet that feels cramped will make the entire bathroom feel smaller and less usable. If possible, consider partial walls or strategic placement to keep it slightly out of direct view.

Do:

  • Leave at least 15" from the center of the toilet to any side wall or obstruction
  • Leave 21-24" clearance in front or comfortable use

Don't

  • Position the toilet as the first thing you see when entering the bathroom
  • Place toilets too close to vanities or walls
Visualizing spacing for toilet in bathroom

Don't Forget About Your Doors

A poorly placed door can make an otherwise good layout feel awkward. In smaller bathrooms, especially, rethinking the door style can unlock valuable space.

Do:

  • Show door swings on your floor plan during the planning phase
  • Ensure doors don't collide with vanities, toilets, or light switches
  • Consider alternatives like pocket doors in tight spaces

Don't

  • Let doors block movement
  • Ignore how the door affects traffic flow
Proper vs poor bathroom door positioning

Think About Storage and Everyday Use

After showers, vanities are where people spend the most time in the bathroom, so spacing and storage matter more than you might think.

Do:

  • Give each person enough room with 30-36" width per sink
  • Leave at least 4-6" between sinks for a double vanity
  • Prioritize functional storage like drawers or vertical shelving

Don't

  • Cram two sinks where you only have room for one
  • Skimp on not having enough storage

A single well-designed vanity with ample storage often works better than a cramped double sink setup. Think about real daily use when designing your bathroom. Where will toiletries, towels, and cleaning supplies go?

Spacing between sinks

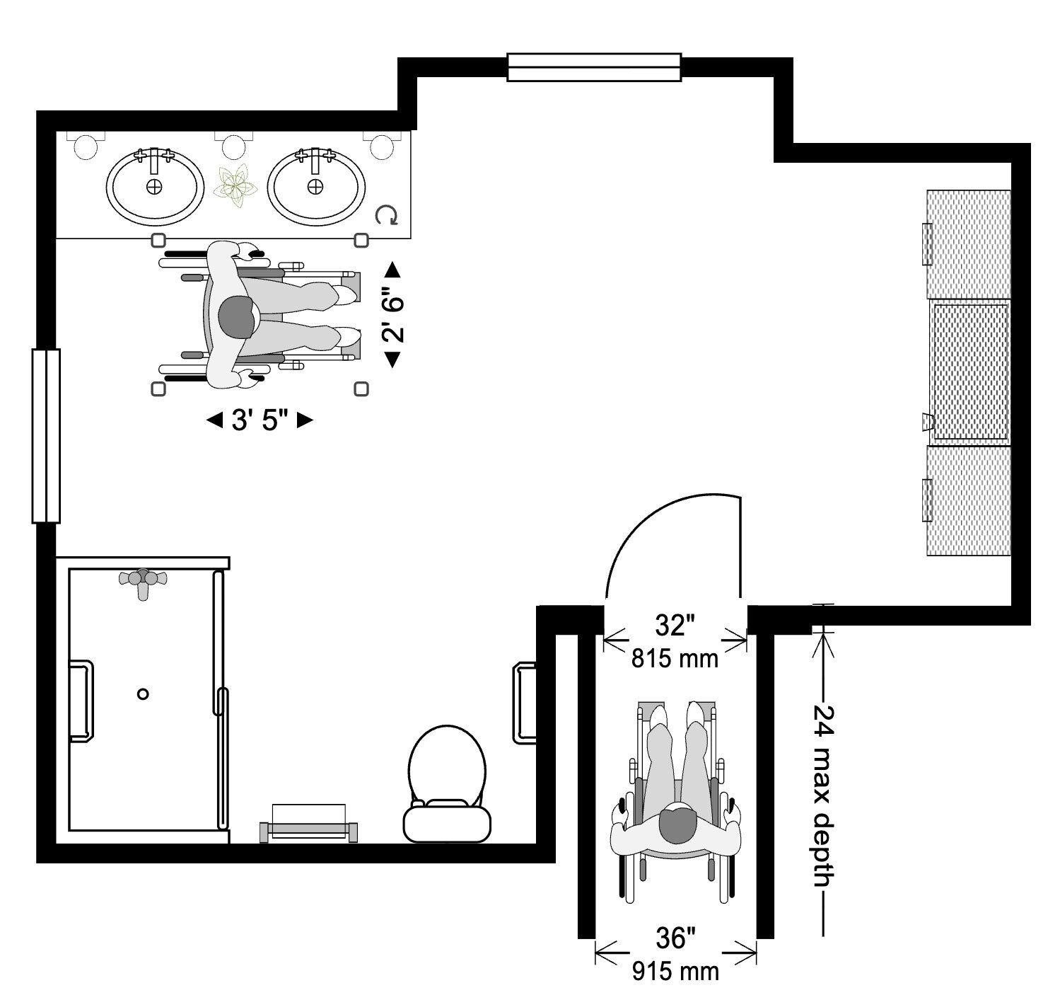
Balance Everyday Use with Long-Term Plans

When it comes to showers and bathtubs think about not just your design goals, but long-term plans. For example, if you plan to resell your home, having at least one tub will be important for resale value, especially for families. If you plan to stay in your home as you age or plan to take care of aging parents, you might want to consider accessibility in your planning.

Do:

  • Consider walk-in access for accessibility and for an open feel
  • Make controls reachable without stepping into cold water
  • Think about your long-term plans like aging in place, resale value, and flexibility

Don't

  • Skip proper waterproofing
  • Get rid of your only tub if you care about resale value
Bathroom floor plan accommodating for disabled individual

Protect Your Bathroom with Proper Ventilation

Poor airflow can lead to mold, odors, and long-term damage in your bathroom.

Do:

  • Get a high-quality powerful exhaust fan to prevent moisture
  • Make sure your fan vents to the outside
  • Consider fans with humidity sensors or timers

Don't

  • Ignore ventilation planning
  • Assume a window alone is enough
Bathroom floor plan focused on ventilation

Design a Great Bathroom

Make sure your bathroom design gets the fundamentals right. A little extra planning upfront will ensure your bathroom works as well as it looks.

  • Map your layout to scale
  • Test clearances and movement paths
  • Think through your daily routines
Finished bathroom layout example

SmartDraw Makes Diagramming Easy