Get More Value from Every Floor Plan

A floor plan can be as a versatile tool as a Swiss Army knife. A well-made floor plan can be much more than just a simple layout. It's a tool for selling, planning, documenting, and protecting your project. Whether you're selling a home, planning a renovation, submitting permits, documenting assets, or preparing for emergencies, a clear and accurate floor plan helps everyone involved understand the space quickly and make better decisions with confidence.

Modern house with sold sign

Real Estate Listings

In real estate, attention spans are short and first impressions matter. Well-staged photos can help catch a buyer's attention, but a professional floor plan can show how the house will work without the buyer having to take a tour of the place in person. They'll instantly see how rooms connect and can answer the question if a specific favorite furniture piece will fit.

Show:

  • Label each room and show dimensions
  • Layout and flow
  • Furniture placement possibilities
Real estate listing floor plan

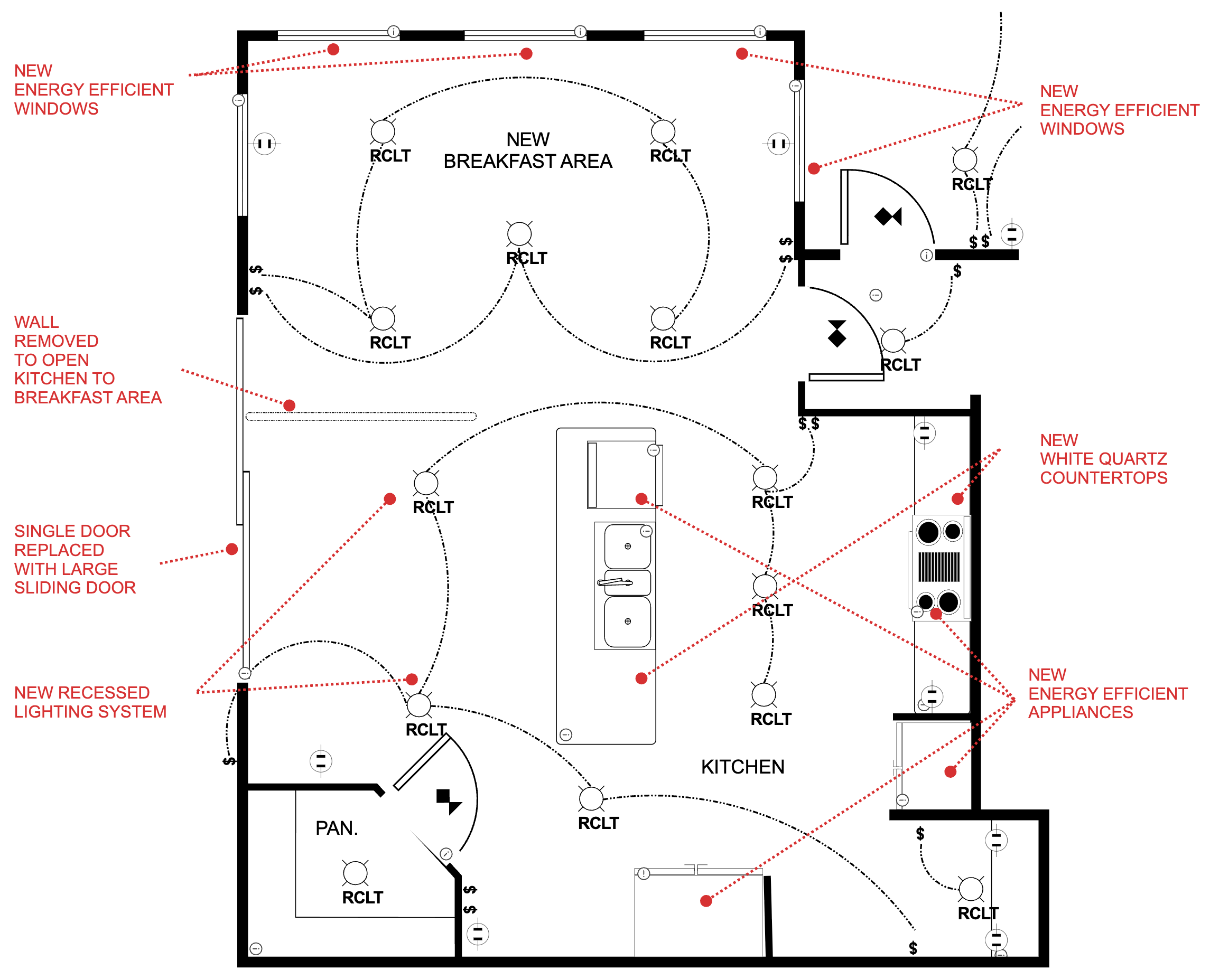
Remodeling Proposals

Remodeling projects often fail not because of poor workmanship, but because of miscommunication and mismanaged expectations. Floor plans solve that problem by making plans and ideas tangible. For contractors, designers, and homeowners, a shared visual plan ensures everyone is on the same page before construction begins. Instead of relying on verbal descriptions or rough sketches, a detailed floor plan shows exactly what is changing.

A remodeling plan should include:

  • Walls being added, removed, or relocated
  • Updated kitchen or bathroom layouts
  • Fixture placements like sinks and appliances
  • Notes on materials and finishes

Floor plans let you build trust and prevent costly mistakes.

Remodeling proposal floor plan

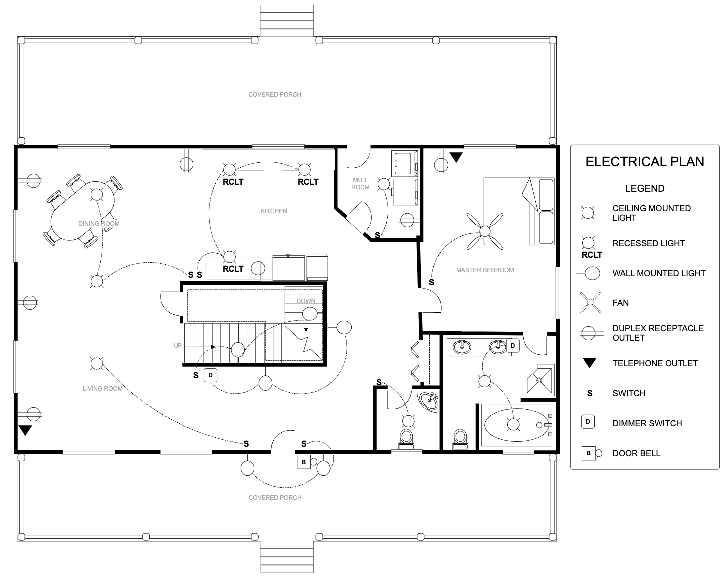
Permit Submissions

Many renovation and construction projects require floor plans for permits. Local building departments depend on these plans to verify that work meets safety codes and regulations. A clear, detailed floor plan can significantly streamline the approval process.

Plans should show:

  • Structural elements such as load-bearing walls
  • Room dimensions
  • Plumbing fixtures and connections
  • Electrical outlets and switches

The more precise and organized your plan is, the less likely it is to be rejected or delayed.

Floor plan for permit submission

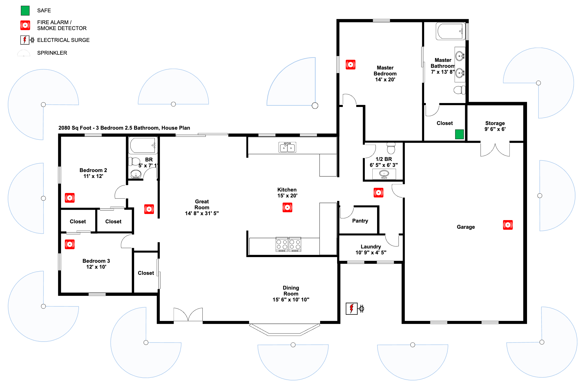
Insurance Documentation

In the event of damage, theft, or disaster, having a documented layout can make insurance claims faster and more accurate. By mapping out your space and its contents, you create a clear record of what exists and where it's located.

An insurance-focused floor plan can show:

  • Room locations
  • Major appliances
  • Safety equipment like alarms and sprinklers
  • Location of high value items

This kind of helps documentation supports more accurate valuations and reduces disputes during claims. It also helps ensure nothing is overlooked when assessing losses.

Floor plan with alarm and sprinkler symbols

Life Safety Planning

Floor plans play a critical role in helping people understand how to exit a building quickly and safely. This is not just common, but often required by regulations for most public spaces like offices and schools. You can make an emergency plan for your own home as well to help your family, especially kids, know what to do in case of a fire.

Your floor plan can show:

  • Clearly marked evacuation routes from each room
  • Exit doors
  • Fire extinguisher locations
  • Smoke detector placement

The key is simplicity and clarity. Make sure your emergency plan can be read at a glance. Go over plans with your family ahead of time, so under high-stress they can act quickly and confidently.

Home evacuation plan

From Listing to Life Safety, Floor Plans Can Help

When done right, a floor plan isn't just a drawing. It's a decision-making tool, a communication asset, and a layer of protection for your project long after it's complete.

Realtor meeting with new home owners

SmartDraw Makes Diagramming Easy